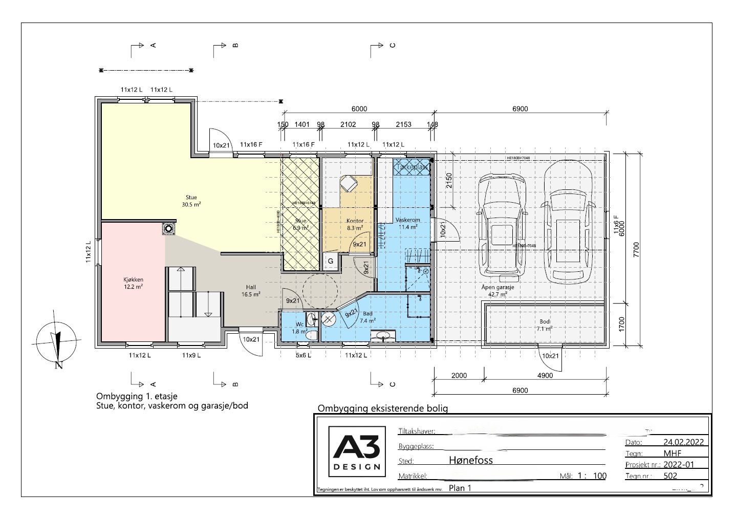
Enebolig, rehabilitering

Byggeår: 1996
Renovert: 2022
Kommune: Ringerike
Oppdragsgiver: Privat
Stor enebolig i Haugsbygd, ved Hønefoss. Prosjektet omfatter rehabilitering av en enebolig hvor familien hadde behov for mer plass, men ønsket å beholde husets opprinelige utforming. Løsningen inkluderer en ny ungdomsavdeling og loftstue i 2. etasje, åpen garasje med tilhørende bod og nytt vaskerom/bi-inngang. Det ble også god lagringsplass og boder/kott. Boligen fikk både bedre funksjon og mer rom til hverdagslivet.









