Våre tjenester

Vi bistår i hele prosessen
Priser:
Skisse
Søknadstegning
Søknadstegninger er de detaljerte og korrekte tegningene som kreves for å sende inn en byggesøknad til kommunen,
Kart
Kart viser hvordan bygget ditt er plassert på tomten enten det gjelder situasjonskart, utomhusplan eller reguleringsplankart.
Sol-/ Skygge illustrasjon
Realistisk presentasjon
En realistisk presentasjon er en naturtro visualisering som viser hvordan bygget ditt kan se ut i virkeligheten.
Virtuell 3D-modell
En virtuell 3D‑modell er en digital modell du kan utforske fra alle vinkler, slik at du får en realistisk følelse av hvordan bygget vil bli.
IFC / openBIM
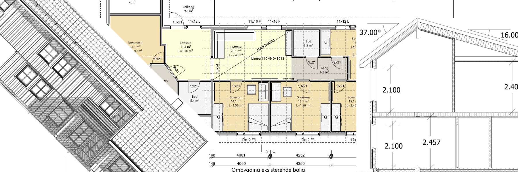
Arbeidstegning
En arbeidstegning er en detaljert tegning som viser nøyaktig hvordan bygget skal utføres, og brukes av håndverkere i selve byggeprosessen.
Mengdeliste
En mengdeliste er en oversikt over hvilke materialer og mengder som trengs i prosjektet slik at håndverkere kan planlegge og prise arbeidet.
