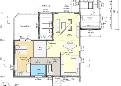
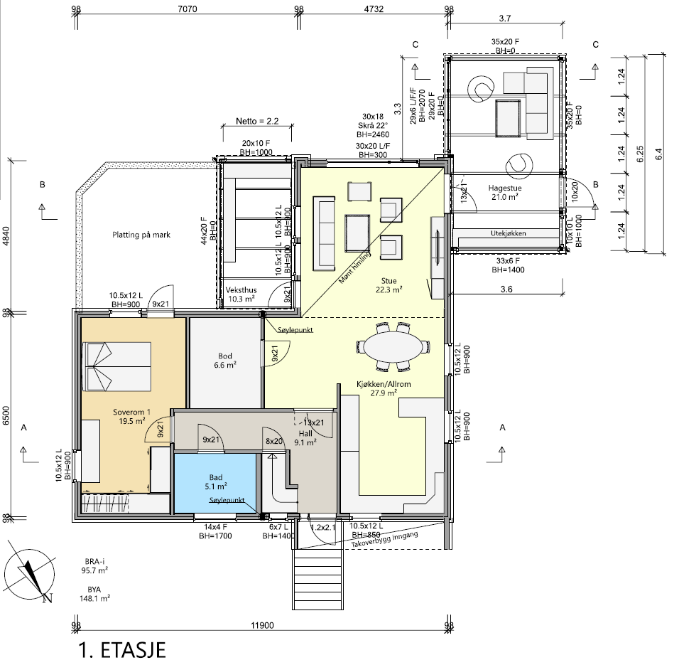
Ombygging m/hagestue

Byggeår: ca 1972
Renovert: 2026/27
Kommune: Stavanger
Oppdragsgiver: Privat
Et skisseprosjekt for en kunde som bor landlig til i Stavanger kommune. Huset skal gjennom en større oppgradering, der 2. etasje bygges om med hevet tak for å få plass til flere soverom og en åpen, trivelig loftstue. Hele 1. etasje etterisoleres med 98mm påforing og får ny kledning. Vinduer og dører byttes etter behov. Et nytt overbygg ved hovedinngangen gir et mer innbydende og beskyttet inngangsparti. Den gamle hagestuen demonteres og settes opp på nytt som et veksthus til dyrking av urter, og ny hagestue bygges på vestsiden av boligen.















